NEW MEADOW
Project Design : New Meadows, Idaho
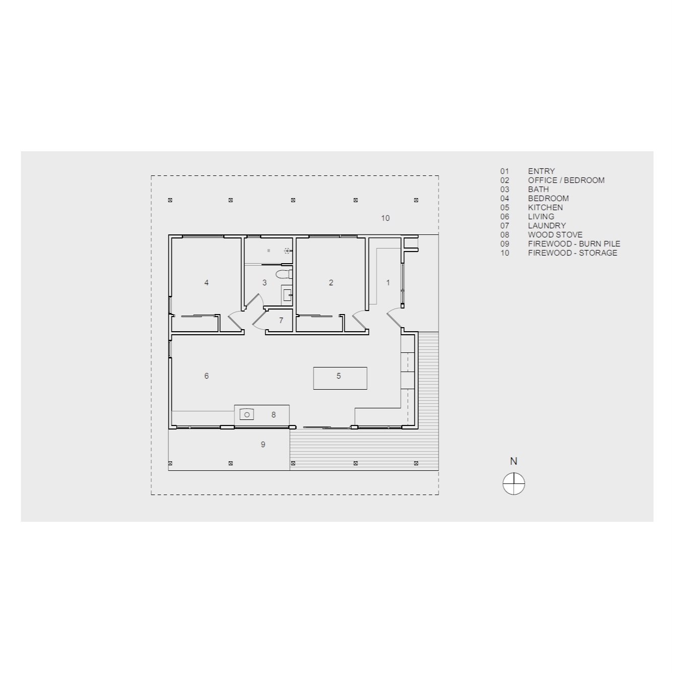
Project Design : Elongated shed roof volume that is designed around storing, cutting, drying, and bringing firewood indoors. The shed roof was designed with solar orientation studies.
Project Values : Daylighting , Solar Orientation.
SOLAR STUDY
Study : Roof Overhang was evaluated with solar position throughout the year. Months pertaining to Summer Solstice, Autumn/Fall Equinox, and Winter Solstice. Times of Day from Sunrise, Noon, to Sunset.
MASSING MODEL
Project Model : Physical models are a critical part of the design process to understand space and form more intuitively. Holding a model allows you to see proportions, depth, and relationships between elements from multiple angles. Unlike quick and messy physical models, I use final study models at the end of the design process to fine tune aesthetics, that aren’t obvious in drawings or 3D computer software. Finally, refined models serve as a bridge between concept and construction.













