General Notes
Location :
McCall , Idaho
Program :
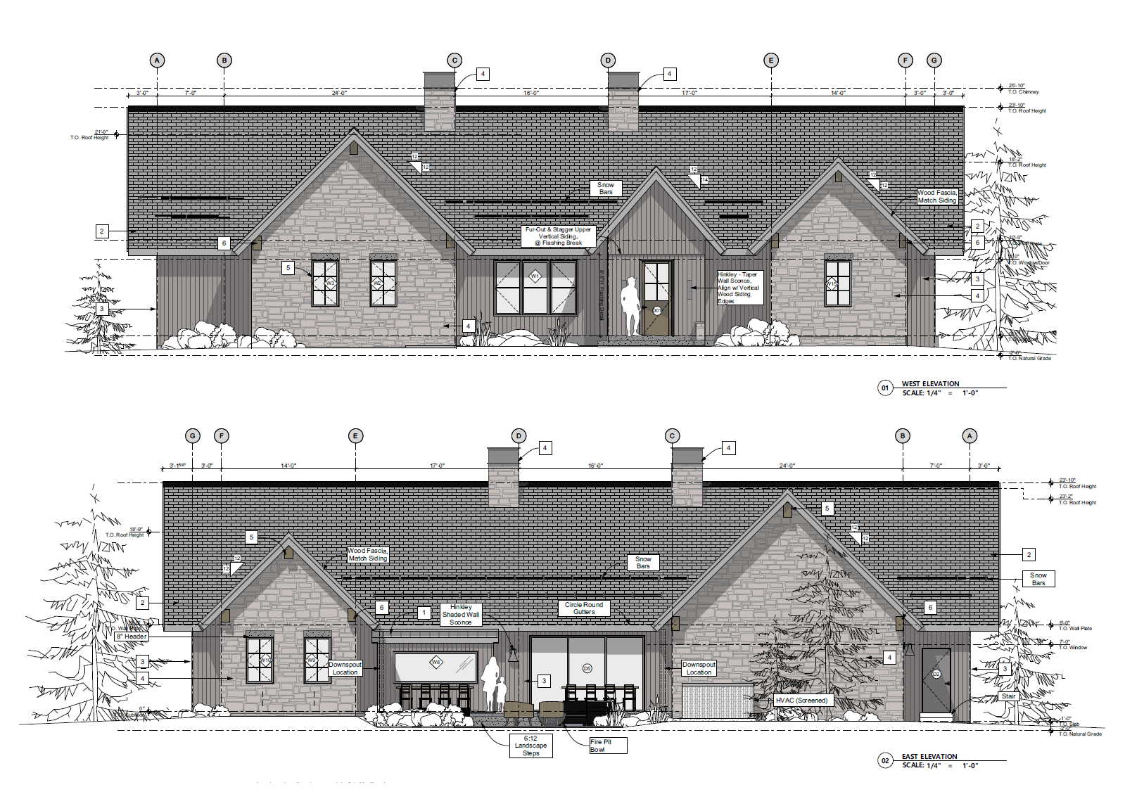
Single Story Home . 4 Bedroom , 3.5 Bath (4,100 sq ft)
Design Concept :Home acts as visual threshold between Entry and Payette River. Outdoor landscape walls transition to stone Interior walls and back to outdoor landscape walls on the other end. Resulting in a gradient of indoor-outdoor spacial concepts.
Environmental Integrity
- Seasonal Solar Analysis and Design Response.
- Back-of-house program placed on North, minimizing northern-facing windows and energy use.























